Сегодня
История России
Главное
Средневековая Русь
Военные конфликты и кампании
Полки России
Календарь побед Русской армии
Внешнеполитическая история России
Приказы Российского государства
Хроники Отечественной войны 1812 года
Заграничные походы русской армии 1813-14 гг.
Ленты времени
Границы России
История государственной охраны России
Территориальная история России
Цхинвал и Южная Осетия
Регионы Российской Империи
Крым. История вхождения в Российскую Империю
Севастополь и Российский флот
Южные Курилы. История вопроса
Философский Хронограф
Правители России
Всемирная история
Главное
Большая Игра
Страны и правители
Монеты мира
Американская революция
Восточная Пруссия. История и путь в Россию.
Катынь
Ост-Индская компания
Пакт Молотова - Риббентропа
Политическая история исламского мира
Полки Англии, Испании, Франции, Швеции, Австрии, Баварии, Саксонии, Пруссии
Страны Восточной Европы во Второй мировой войне (1939 – 1945 гг.)
Страны Северной Европы во Второй мировой войне 1939 – 1945 гг.
Библиотека
Новое в библиотеке
Алфавитный каталог
Авторы
Атласы
Библиографические справочники
Военная история
Всеобщая история
Детская иллюстрированная книга
Журнальный зал
Отечественная история
Полковые истории
Путешествия и описания земель
Русская философия
Собрания документов
Энциклопедии и словари
Книги Руниверс
Лекционный зал
Статьи
Главное
Большая игра
Законы Русского Государства
История в лицах
Календарь
Картография
Наши рекомендации
Сегодня и вчера
События
Дата-сеты
Главное
Страны и правители
Галерея
Новое в галерее
Авторы
Тематические подборки
Гравюра, типографский оттиск
Документы
Инфографика
Историческая иллюстрация
Оригинальная иллюстрация
Портреты
Произведение архитектуры, монументального искусства
Произведение искусства
Произведение прикладного искусства
Прочее
Русская историческая живопись
Русская фотография
Фотография
Картография
Новое в картах
Атласы
Военные карты
Географические карты
Интерактивные атласы
Исторические карты
Карты Руниверс
Планы городов
Политико-административные карты
Прочие карты
Специальные карты
Наши издания
Наши издания
Наглядная хронология
Illustrated Timeline
Боевые действия русских войск
Военные конфликты, кампании и боевые действия русских войск, 860–1914 гг.
Большая игра
Исторический вестник
Философия
Государство
Назад к разделу
Гравюра, типографский оттиск
Документы
Законы Русского Государства
Инфографика
Историческая иллюстрация
Оригинальная иллюстрация
Иллюстрации ФСО
Территориальная история
Энциклопедия
Портреты
Произведение архитектуры, монументального искусства
Произведение искусства
Произведение прикладного искусства
Прочее
Русская историческая живопись
Русская фотография
Арзамас
Благотворительность
Большая игра
Виды Нижнего Новгорода
Галереи
Галереи Прокудина-Горского Сергея Михайловича
Галереи Барщевского , Ивана Федоровича
Галереи Бергамаско Карла Ивановича
Галереи Болдырева Ивана Васильевича
Галереи Буллы, Карла Карловича
Галереи Вишнякова Евгения Петровича
Галереи Деньера, Генриха (Андрея) Ивановича
Галереи Карелина Андрея Осиповича
Галереи Карла Карловича Буллы
Галереи Каррика Василия Андреевича
Галереи Левицкого Сергея Львовича
Галереи Лобовикова , Сергея Александровича
Галереи Максима Петровича Дмитриева
Галереи Мрозовской Елены Лукиничны
Галереи Настюкова Михаила Петровича
Галереи Рауля Ж. Х.
Галереи Шапиро Константина Александровича
Касимов
С.М. Прокудин-Горский
История ФСО
Матроска
Муром
НН2010
Общая галерея
Павлово
Рыбинск ИЕСА
фотоистории
Фотография
Галерея
Оригинальная иллюстрация
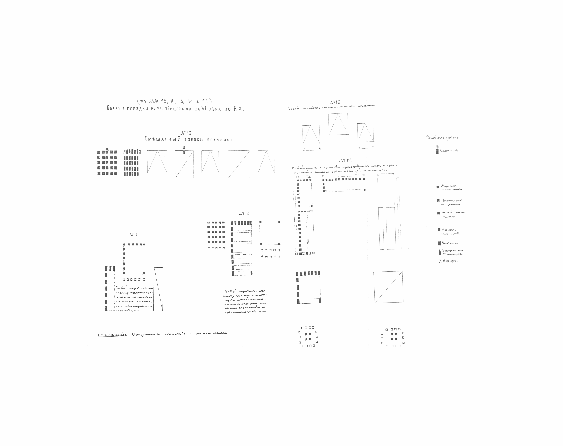
№17. Порядки византийцев конца VI века. Боевой порядок против превосходных масс периятельской кавалерии, охватывающей с флангов.
Источник
Военная история
Атласы
Атлас к краткому курсу истории военного искусства в средние века
В авторском атласе одного из заслуженных профессоров Николаевской Академии Генерального Штаба полковника П.А. Гейсмана приведен ряд схем построения войск в известных сражениях эпохи крестовых походов и Столетней войны XIII-XV вв. для иллюстрации краткого курса развития военного искусства в раннее средневековье.
Гейсман Платон Александрович
Читать
Другие изображения из рубрики
Гробница Хлодвига, найденная в аббатстве св.Женевьевы.
Типы айнов.
Афины. Внутренность театра Бахуса.
Река Барада, "Золотой поток".
Генерал-Майор Яков Петрович Кульнев.
Фиг.1-2. Размещение картечных зарядов в мешках и металлических цилиндрах.
Установка наружного броневого шельфа
Том III. Таб.G. Cachrys odontalgica.
Пушка XIV века. Мортиры XIV века.
Все изображения